|
Серия
|
4000E1+ |
|
ГОСТ/ТУ
|
3706-93 |
|
DN
|
50-300 |
|
Давление, PN
|
10/16 |
|
Материал
|
Высокопрочный чугун |
|
Присоединение
|
фланцевое |
|
Среда
|
питьевая вода |
|
Управление
|
ручное |
|
Материал запирающего элемента
|
чугун |
|
Уплотнение
|
EPDM |
|
Направление
|
двустороннее |
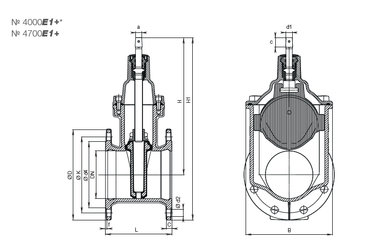
Упругозапирающаяся клиновая задвижка со свободным проходным каналом HAWLE 4000E1+ DN50-300 PN10/16 (ДУ50-300, РУ10/16) c невыдвижным шпинделем согласно EN1074-1, EN1074-2.
Особенности:
- Стандартное исполнение без штурвала и штока (пригодно только для ручного управления).
- Короткая строительная длина - ГОСТ 3706-93, размерный ряд.
- Втулка с уплотнительными кольцами крепится к крышке с помощью байонентного соединения.
- О-образные кольца из высококачественного эластомера.
Материалы:
1,2. Корпус (1) и крышка (2) из высокопрочного чугуна с эпоксидным покрытием внутри и снаружи
3. Клин из высокопрочного чугуна и полностью вулканизирован EPDM
4. Направляющие клина изготовлены из износостойкого полимера POM
5. Гайка клина из латуни
6. Шпиндель с холоднокатаннной и полированной резбой из дуплексной нержавеющей стали (с содержанием Cr не менее 21%)
7. Втулка шпинделя из латуни с байонентным креплением и 4 О-образных уплотнительных кольца
9. Уплотнение крышки из EPDM
10. Винты крышки защищены от корррозии восковой заливкой и уплотнением крышки
11. Пыльник из PE для защиты от грязи втулки шпинделя
12. Подшипник скольжения изготовлен из POM 13 Опора шпинделя изготовлена из POM

Технические параметры:


Преимущества:
- Направляющие клина с высокими характеристиками скольжения и оптимизированнная под нагрузку конструкция гарантирует низкий износ и минимальный крутящий момент закрытия.
- Подшипники скольжения гарантируют плавное и лёгкое вращение шпинделя.
- Подходит для бесколодезной установки.
- Шпиндель из дуплексной нержавеющей стали.
- Благодаря одинаковому диаметру прохода возможна чистка
Чтобы купить клиновую чугунную задвижку HAWLE 4000E1+ DN50-300 PN10/16 (ДУ50-300, РУ10/16) оставьте заявку на сайте. Наш менеджер свяжется с вами для уточнения деталей заказа и рассчитает стоимость доставки.

