Демонтажная вставка Hawle 9810 ДУ50-2500, РУ10 (DN50 - DN2500, PN10) чугунная
Цена по запросу
Арт. 9810
Характеристики
Вид
—
Демонтажная вставка
Тип
—
Чугунная
DN
—
50-2500
Давление, PN
—
PN10
Материал
—
Высокопрочный чугун
Присоединение
—
Фланцевое
Цена действительна только для сайта и может отличаться от указанной в прайс-листе
Демонтажная вставка Hawle 9810 ДУ50-2500, РУ10 (DN50 - DN2500, PN10) чугунная
Цена по запросу
Арт. 9810
Характеристики
|
Вид
|
Демонтажная вставка |
|
Тип
|
Чугунная |
|
DN
|
50-2500 |
|
Давление, PN
|
PN10 |
|
Материал
|
Высокопрочный чугун |
|
Присоединение
|
Фланцевое |
|
Среда
|
Вода |
|
Материал запирающего элемента
|
Чугун |
|
Уплотнение
|
Эластомер |
|
Направление
|
Двустороннее |
Фланцевая фасонная часть, позволяющая выполнять компенсирование в системе трубопроводов с фланцами в продольном направлении.
может оказаться невозможным. Для присоединения демонтажной вставки к данным типам фланцев рекомендуется заменить шпильки на более длинные.
| Вариант 9810 PN 10 | |
|---|---|
| Соединение | Фланцевое |
| Материал | Высокопрочный чугун |
| Диапазон диаметров | DN50 - DN2500 |
| Классификация давления | PN 10 |
Особенности модели
- Простой монтаж и демонтаж фланцевой арматуры.
- Цельные резьбовые шпильки, дополнительные фиксирующие болты не требуются
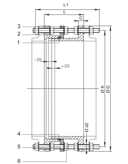
- Диапазон регулировки длины: строительная длина (см. таблицу) +/- 25 мм
- Размеры и отверстия фланца согласно EN 1092-2 | PN 10
- Тип 02 – Фланец стальной плоский на приварном кольце,
- Тип 03 – Фланец стальной плоский на отбортовке,
- Тип 04 – Фланец стальной плоский на хомуте под приварку по ГОСТ 33259-2015
может оказаться невозможным. Для присоединения демонтажной вставки к данным типам фланцев рекомендуется заменить шпильки на более длинные.
Размеры
|
DN мм |
D мм |
К мм |
L мм |
L1 мм |
С мм |
Расчетная масса кг |
|---|---|---|---|---|---|---|
| 50 | 165 | 125 | 180 | 280 | 19 | 11 |
| 65 | 185 | 145 | 180 | 280 | 19 | 13 |
| 80 | 200 | 160 | 200 | 330 | 19 | 17 |
| 100 | 220 | 180 | 200 | 330 | 19 | 20 |
| 125 | 250 | 210 | 200 | 330 | 19 | 24 |
| 150 | 285 | 240 | 200 | 330 | 19 | 30 |
| 200 | 340 | 295 | 200 | 330 | 20 | 42 |
| 250 | 405 | 350 | 220 | 360 | 22 | 62 |
| 300 | 460 | 400 | 220 | 360 | 24,5 | 67 |
| 350 | 505 | 460 | 230 | 360 | 24,5 | 85 |
| 400 | 565 | 515 | 230 | 370 | 24,5 | 105 |
| 450 | 615 | 565 | 250 | 390 | 25,5 | 131 |
| 500 | 670 | 620 | 260 | 390 | 26,5 | 155 |
| 600 | 780 | 725 | 260 | 410 | 30 | 225 |
| 700 | 895 | 840 | 260 | 410 | 32,5 | 300 |
| 800 | 1015 | 950 | 290 | 460 | 35 | 361 |
| 900 | 1115 | 1050 | 290 | 460 | 37,5 | 400 |
| 1000 | 1230 | 1160 | 290 | 500 | 40 | 516 |
| 1100 | 1355 | 1270 | 300 | 480 | 53,5 | 830 |
| 1200 | 1455 | 1380 | 320 | 520 | 45 | 895 |
| 1300 | 1585 | 1490 | 370 | 630 | 59 | 1172 |
| 1400 | 1675 | 1590 | 360 | 560 | 46 | 1194 |
| 1500 | 1785 | 1700 | 380 | 590 | 47 | 1560 |
| 1600 | 1915 | 1820 | 390 | 600 | 49 | 1436 |
| 1700 | 2030 | 1920 | 445 | 750 | 68 | - |
| 1800 | 2125 | 2020 | 450 | 750 | 52 | - |
| 2000 | 2325 | 2230 | 450 | 750 | 55 | - |
| 2200 | 2550 | 2440 | 450 | 750 | 65 | - |
|
2400 |
2760 | 2650 | 450 | 750 | 65 | - |
| 2500 | 2860 | 2750 | 450 | 750 | 65 | - |
Комплектующие
| 1,2. | Наружные фланцы | высокопрочный чугун с эпоксидным покрытием |
| 3. | Внутренний фланец | сталь |
| 4. | Уплотнение | эластомер |
| 5. | Резьбовые шпильки | cталь оцинкованная |
| 6. | Гайки | cталь оцинкованная |

Преимущества:
- Надежность и долговечность (чугунная конструкция).
- Удобство при ремонтных работах.
- Компенсация продольных смещений.
Применение:
- Водоснабжение, канализация, промышленные трубопроводы.
- Системы, где требуется компенсация температурных расширений или вибраций.
- Упрощение обслуживания и замены арматуры.
Документы

